Компания «Мосэлектрощит» является производителем и разработала шкаф КРУ 35 кВ для организации комплексной поставки оборудования разных классов.
Комплектные распределительные устройства серии К-130 предназначены для приема и распределения электрической энергии в электрических сетях переменного трехфазного тока частотой 50 и 60 Гц номинальным напряжением 35 кВ с изолированной или с частично заземленной нейтралью.
Шкафы КРУ «ГАРАНТ» применяются для установки в трансформаторных подстанциях 220/35/6(10), 110/35/6(10), 35/6(10), 35/0,4 кВ на стороне 35 кВ, а также для распределительных пунктов (РП) 35 кВ объектов электроэнергетики, транспорта, промышленных предприятий, газокомпрессорных станций.

|
Наименование параметра |
Значение параметра |
|
Номинальное напряжение (линейное), кВ |
35 |
|
Наибольшее рабочее напряжение (линейное), кВ |
40,5 |
|
Номинальный ток главных цепей шкафов, А |
630; 1250; 1600;2500 |
|
Номинальный ток сборных шин, А |
1250; 1600; 2000; 2500 |
|
Номинальный ток отключения выключателя, кА |
16; 20; 25; 31,5 |
|
Номинальный ток электродинамической стойкости главных цепей, кА |
40; 51; 64; 84 |
|
Номинальное напряжение вспомогательный цепей постоянного и переменного тока, В |
220 |
|
Номинальное напряжение вспомогательных цепей, В: - постоянного тока; - переменного тока. |
110, 220 220 |
|
Уровень изоляции по ГОСТ 1516.3-96 |
Нормальная (уровень «а», «б») |
|
Вид изоляции |
Комбинированная, с изолированными сборными шинами |
|
Вид линейных высоковольтных присоединений |
Кабельные, шинные |
|
Условия обслуживания |
Одностороннее/ Двухстороннее |
|
Наличие дверей в отсеке выкатного элемента |
Шкафы с дверью |
|
Вид поставки |
Шкафами (1 или 2) или блоками по 2 шкафа в секции БМЗ |
|
Вид управления коммутационными аппаратами |
Местное, дистанционное, телеуправление |
|
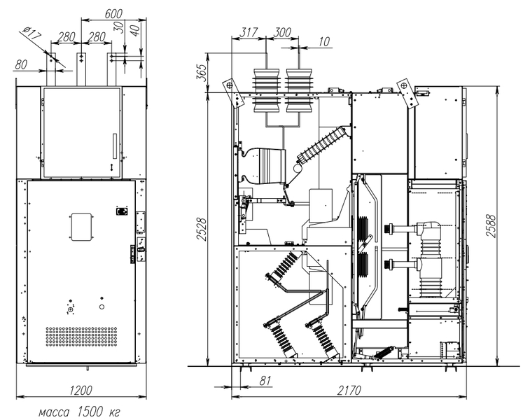
Габаритные размеры шкафа, мм: - ширина - глубина - высота |
1200 2165 2590 |
Чтобы заказать ячейки КРУ 35 кВ от производителя и уточнить цену, позвоните по телефону +7 (495) 787-43-59 или воспользуйтесь формой заказа на сайте.

Конструкция ячеек КРУ К-130 выполнена таким образом, чтобы обеспечивалось нормальное функционирование аппаратов управления, не происходило срабатывание схем защиты, приводящее к отключению выключателя и срабатыванию схем сигнализации при возможных сотрясениях элементов устройства при работе выключателя.
Шкаф КРУ 35 кВ от производителя имеет жесткую металлическую конструкцию и состоит из отсеков: линейного, выкатного элемента, сборных шин, релейного шкафа.
Габаритные размеры ячейки КРУ 35 кВ серии К-130 ввода/вывода
По дну шкафа проходит магистральная медная шинка, заземляющая шкафы между собой, которая соединяется с общим заземляющим контуром подстанции в двух местах (с двух сторон блока шкафов).
Проход контрольных кабелей через высоковольтные отсеки закрывается съемным листом (крышкой).
Провода вспомогательных цепей в высоковольтных отсеках шкафа КРУ К-130 закрываются защитными кожухами.
Если вам требуется разработать нетиповой проект, свяжитесь с нами для обсуждения условий и расчета стоимости по телефону +7 (495) 789-38-14, доб. 234 или просто заполните форму ниже.